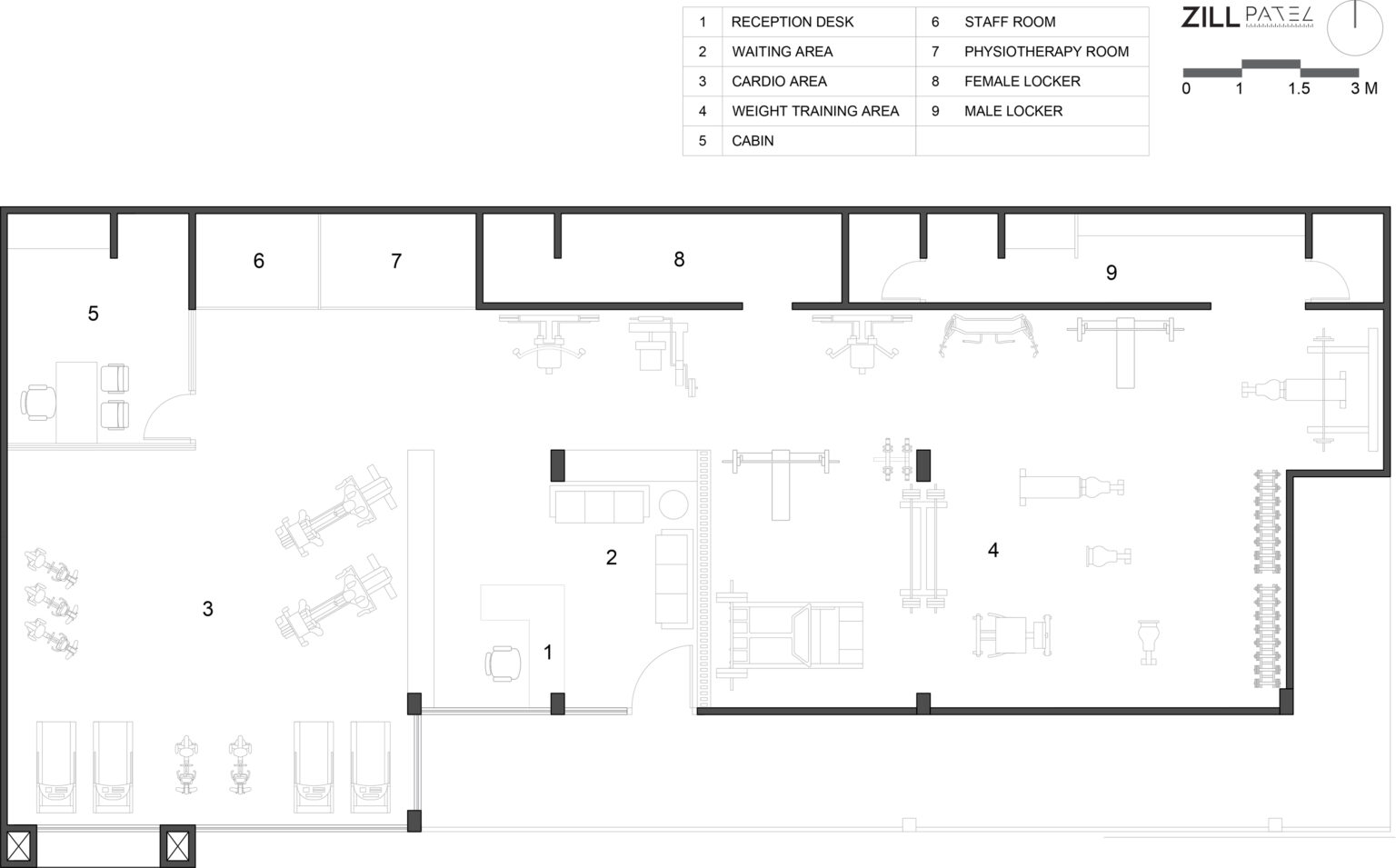
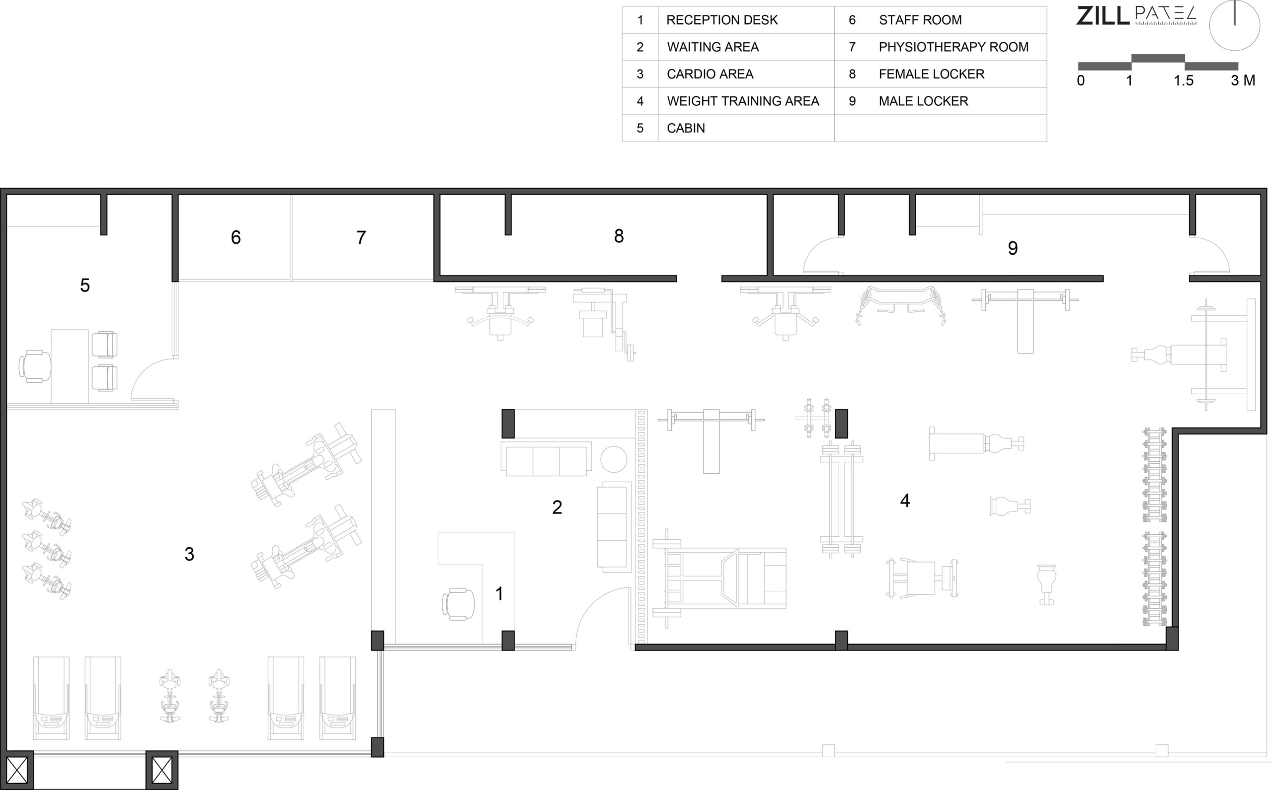
Project Brief :
This gym exudes a contemporary aesthetic with its dark interior palette. A focus on cost-effectiveness is evident in the use of aluminum for structural elements and wooden PVC flooring. The design prioritizes functionality, with wooden slat partitions creating a balance between privacy for the waiting area and an open feel for the gym space. To maximize the perceived size of the gym, large mirrors are strategically placed on the walls. This design choice not only creates an illusion of a larger space but also enhances the workout experience. The overall ambiance of the gym is sleek and modern, achieved through the careful selection of materials and the efficient use of space.














