Project Brief :
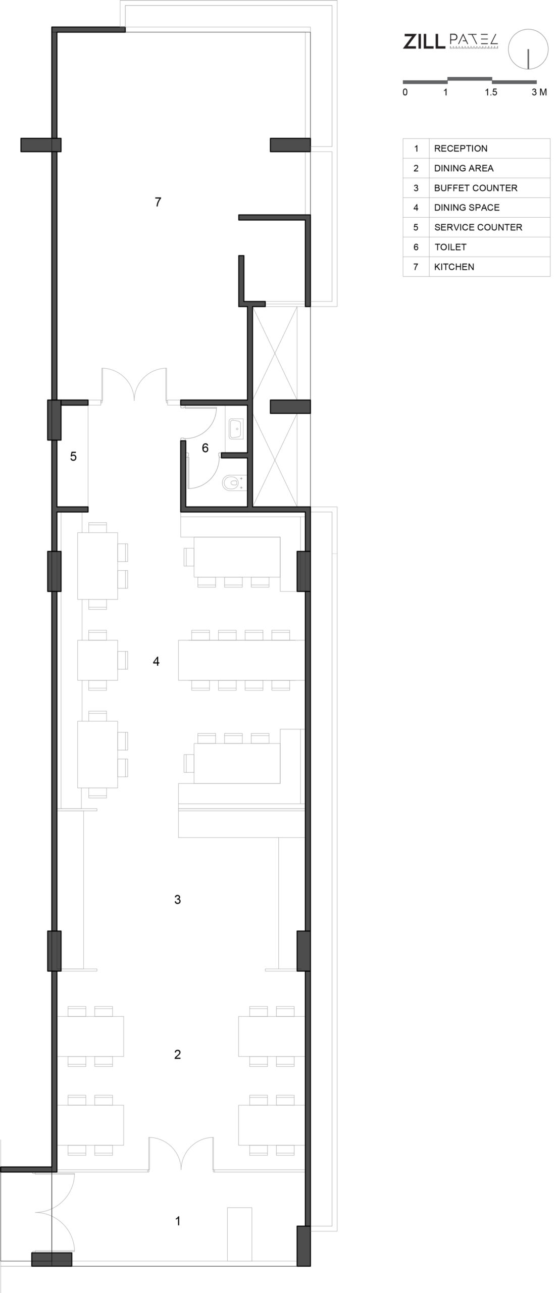
A contemporary space rooted in Rajasthani character, the restaurant blends intricate wooden jali screens and vibrant stained glass partitions to shape a layered, visually rich interior. Bold pops of color in the furniture complement the detailed craftsmanship, creating a dynamic yet balanced palette. The overall design evokes tradition through texture and pattern, while maintaining a clean, modern spatial experience that feels both immersive and refined.













